Appartement lumineux & confortable, accès pistes, balcon - FR-1-344-1017

Muy bien 8 (1 opiniones)
Residencia
Precio no disponible
A propósito
Appartement lumineux & confortable, accès pistes, balcon - FR-1-344-1017 está en Les Menuires, a 29 km de Casino des 3 Vallées Brides les Bains y a 41 km de Les 3 Vallées, en una zona donde se puede practicar esquí. Golf de Méribel está a 44 km del apartamento.
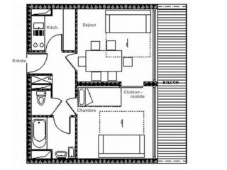
El apartamento dispone de 1 dormitorio, cocina con nevera y lavavajillas, lavadora y 1 baño. Hay TV.
Hay guardaesquíes en el propio alojamiento.
El aeropuerto (Aeropuerto de Chambéry - Savoya) está a 115 km.
Ubicación
LA CROISETTE 1 Avenue de la Croisette73440 Les Menuires
Reservar
Fechas de la estancia
Disponibilidad con
--------------